|
Bauherr: Freistaat
Sachsen
Architekt: Peter Kulka / Altbau: Barthold und Tiede (1928- 31)
Platzgestaltung: Peter Kulka
Bauzeit: _1991- 94
Adresse:.
Bernhard-von-Lindenau-Platz 1
Architektur. Die Bauten des Sächsischen Landtages:
www.landtag.sachsen.de
Mit der Wiedervereinigung
Deutschlands mußte die Unterbringung des sächsischen Landtages
gelöst werden: Zunächst wurde das alte Ständehaus von
Wallot in Betracht gezogen, doch fiel die Entscheidung, das 1928-
31 von Barthold und Tiede im Stil der Neuen Sachlichkeit erbaute Landesfinanzamt
zu sanieren, das 1953 - 89 die Bezirksleitung der SED beherbergt
hatte. Dieses Ensemble wurde zur Elbe hin u.a. mit einem Plenarsaal
ergänzt - auch um diesen zentralen Bereich besser zu nutzen.
Dazu gab es einen beschränkten Wettbewerb von 12 sächsischen
Architekten, den der 1990 aus Köln nach Dresden zurückgekehrte
Kulka gewann.
Der Neubau strahlt Zurückhaltung und Bescheidenheit aus. Eine
kräftige Geste des Schutzes unserer Demokratie symbolisiert jedoch
das weit hervorstehende Flugdach am Eingang zum Neubau.
Dieser soll im spannungsvollen Gegensatz zum schweren, steinernen
Altbau leicht und transparent wirken. Funktion und Konstruktion werden
nach den Prinzipien der Moderne offengelegt. Zum Beispiel in den neuen
Flügelbauten ist die offen liegende Stahlskelettkonstruktion
mit roh belassenen Stahlbetondecken ein Gestaltungselement. Viel Glas
soll viel nachvollziehbare Transparenz assoziieren.
In den Sommermonaten allerdings kann man das Parlamentsgebäude
von der Neustädter Elbseite kaum erkennen, so versteckt es sich
hinter den Lindenbäumen. Eine kräftig akzentuierte Vertikale
hätte den großen Stolz auf die 1989 besonnen erkämpfte
Demokratie gut zum Ausdruck bringen können. Doch der Architekt
Peter Kulka hat den Neubau horizontal gelagert. Eine
vertikale Betonung des Neubaus wurde zugunsten des rückwärtig
gelagerten, turmartigen Eckbaus aus dem Jahr 1931 verzichtet. Damit
sollte die Gliederung des Terrassenufers mit niedrigen Baukörpern
an der Elbe und höheren Bauteilen dahinter fortgesetzt werden.
Im Inneren wird der mit Holz verkleidete Plenarsaal als runder amphietheaterartige
Bau konstruktiv sichtbar. Von außen wölbt sich das Rund
gläsern um die Ecke. Vier massive Kreuzstützen halten ein
monumentales Stahldach - ein Motiv entlehnt von der Berliner Neuen
Nationalgalerie von Mies van der Rohe (1965-68).
Für die
Öffentlichkeit zugänglich ist das Restaurant und die
Sonnenterrasse. Selbstverständlich ist die Besuchertribüne
des Plenarsaals für Interessierte - mit Voranmeldung - bei den
Landtagssitzungen zugänglich. Auch das Foyer wird oft mit verschiedenen
Ausstellungen über die Geschichte und Gegenwart des sächsischen
Parlamentarismus vielfältig genutzt. Ein offenes Haus in vielerlei
Hinsicht.
Der offene freie Vorplatz, benannt nach Bernhard Lindenau, wird als
Demonstrationsplatz für verschiedene politische Äußerungen
demokratisch genutzt. Er ist seit 2006 mit dem Kunstwerk "Nike
89, Sieg
mit gebrochenen Flügeln"
vom Künstler Prof.
Wieland Förster ergänzt worden.
Entstehungsjahr: 1997/1998. Mehr Kunst am Bau im Landtag auf:
www.landtag-sachsen.de
Wegen
des ungünstigen Baugrundes und des hohen Grundwasserstandes an diesem
elbnahen Standort erhielt das Gebäude einen Unterbau aus Stahlbetonpfählen
(ca. 1.000 unter dem Altbau und 176 unter dem Neubau) mit einem Durchmesser
von bis zu 1,20 Meter.
Beschreibung der Architektur vom Bauherrn selbst:
"Die Architektur des Landtagsneubaues und deren Fortsetzung
in der Sanierung und Erweiterung des Altbaues sind einer Schaffensperiode
Peter Kulkas zuzuordnen, die sich frei von Probieren und Experimentieren
durch eine das Landtagsgebäude charakterisierende Klarheit,
Schlichtheit und Konsequenz in der Architektursprache auszeichnet. |
 |
| Die
vornehme Zurückhaltung, mit der sich die Gebäudeanlage
im Elbe-Raum einordnet, widersteht jeglicher Versuchung, den umgebenden
Solitärbauten Konkurrenz zu bieten bzw. den inneren Nutzungszweck
als Parlamentsbau in übertriebener Weise nach außen
zu präsentieren. |
 |
| Der
Stahlbau mit seinen großen Glasflächen zwingt das einem
Parlament gut zu Gesicht stehende Thema "Transparenz"
förmlich auf. Der auch kühl und nüchtern wirkende
Bau ermöglicht dadurch die sehr belebende Einbeziehung der
Landschaft in das Raumerlebnis. |
 |
| Funktionalität
und Materialsichtigkeit der Architektur erwachsen aus dem Bedürfnis
Kulkas, nichts zu überdecken und zu verkleiden. Durch die
Wahl edler Materialien und die konsequente Formensprache wird
trotzdem ein vornehmer Gesamteindruck erreicht, der der Würde
und dem Anspruch des Parlaments in überzeugender Weise entspricht. |
 |
| Der
Altbau, in erster Linie eine Sanierungsaufgabe, trägt insbesondere
dort, wo mit Nutzungsänderungen und -erweiterungen Eingriffe
in die Altbausubstanz gewollt waren, die deutliche Handschrift
Kulkas. Gestaltungselemente und Details aus dem Neubau kehren
im Altbau wieder. So ergibt sich ein reizvolles Zusammenspiel
von Formen, Farben und Materialien in äußerlich recht
unterschiedlichen Gebäudeteilen. |
 |
| Ihre
Fortsetzung findet die Architektursprache Kulkas in der Gestaltung
des Platzes vor dem Landtag. Charakteristisch dafür sind
die strenge Aufteilung des Platzes in Flächenbereiche mit
unterschiedlichem Materialeinsatz und die den Platz belebenden
Hochbauelemente, die wiederum den unmittelbaren Bezug zum Neubau
vermitteln. |
 |
| Die
Landtagsbauten sind der "klassischen Moderne" zuzuordnen."
(Textquelle:
www.landtag-sachsen.de)
|
Neubau des Sächsischen Landtags steht jetzt unter
Denkmalschutz
27.09.2023 Sächsische
Landeskonservator Alf Furkert: „30 Jahre nach der einstimmigen
Verabschiedung des Denkmalschutzgesetzes wird erstmals ein nach 1990
errichtetes Gebäude unter Schutz gestellt. Der Erweiterungsbau des
Sächsischen Landtags wurde wegen seiner landesgeschichtlichen, auch
baugeschichtlichen sowie künstlerischen und städtebaulichen Bedeutung
als Kulturdenkmal des Freistaats Sachsen erfasst. Das Landtagsgebäude
ist ein bauliches Bekenntnis des zur Errichtungszeit noch jungen
demokratischen Freistaats Sachsen und mittlerweile ein unverzichtbares
Wahrzeichen der Landeshauptstadt Dresden.“
Der sächs. Landtag
baut ab 2019 (Beginn Auftrag an Peter Kulka) zwei Erweiterungsflügel
zur Elbe und im Innenhof:
Infos dazu.

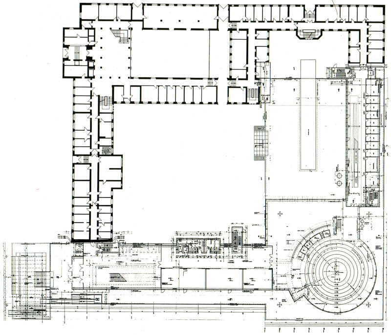
Grundriss Landtagsneubau
- Vergrößerung
Architekt:
Peter Kulka (1937 - 2024)
www.peterkulka.de
Der 1937 in Dresden geborene Architekt Peter Kulka baute das Deutsche Hygiene Museum um
und entwarf 2006 die neue Centrum Galerie an der Prager Straße. Über
viele Jahren war er
auch mit dem Wiederaufbau vom Dresdner Residenzschloss
beschäftigt. Nach einer Maurerlehre hatte Kulka Architektur
erst in Görlitz und Gotha, dann an der Kunsthochschule Berlin-Weißensee bei Selman Selmanagić
studiert. 1964 arbeitete er bei Herrmann Henselmann im Institut
für Typenprojektierung in Ostberlin. Ein Jahr später floh er
1965 in den Westen, wo er dann bis 1968
bei Hans Scharoun in Westberlin arbeitete. Seit 1979 war er mit einem
eigenen Büro in Köln selbständig. Ab 1986 leitete er das Lehrgebiet
konstruktives Entwerfen an der RWTH Aachen. Gleich nach dem
gesellschaftlichen Zusammenbruch der DDR zog er wieder nach Dresden
und gründete hier ein zweites Büro. Peter Kulka ist am 5.
Februar mit 86 Jahren in Dresden verstorben.
www.baunetz.de von 12.02.2024 Streitbarer Charismatiker. Zum
Tod von Peter Kulka Von Friederike Meyer
Abschied von
Architekt Peter Kulka, PM vom 08.02.2024
https://www.dresden.de
Neue
Terrasse
Der gesamte Komplex des Sächsischen Landtages sollte ursprünglich
Teil eines Komplexes für eine Neue Terrasse in Fortführung
der historischen Brühlschen Terrasse nach Westen Richtung Ostragehege
sein. Die mit symmetrischen Baumreihen geplante Weiterführung
sah neben dem Landtag die Verlegung der Landesbibliothek in den alten
Erlwein-speicher vor, ergänzt durch ein neues Philharmoniegebäude.
Diese neue Terrasse wurde in Ansätzen mit dem fortlaufenden Grünzug
bis zur Eisenbahnbrücke realisiert.
Die angestrebten neuen Nutzungen allerdings kamen nicht zustande.
Stattdessen wurde das ICCD gebaut sowie ein Hotel im komplett entkernten
Erlweinspeicher.

neue Terrasse (Foto: Mai 2010 )
Die neue Terrasse wurde übrigens vom Dresdner Hochbauamt mit Hochwasserkaimauer, Bäumen und Promenadenweg zwischen 1931 und 1934
nach Abbruch von Zufahrtsgleisen errichtet.
Altbau:
Barthold und Tiede (1928- 31)
Neue Sachlichkeit in Dresden
|
|
            
Altbau:
Barthold und Tiede (1931) 
Altbau
- Foyer

Modell Sächsischer
Landtag, Mai 1991

Stuhl im Foyer des Landtages, Foto: T.Kantschew 2019,
Vergrößerung

Bernhard-von-Lindenau-Platz - moderne Platzgestaltung:
"Die streng geordnete Architektursprache Kulkas findet auch in
der Gestaltung des Vorplatzes ihre Fortsetzung. Charakteristik des
Platzes ist neben den geschnittenen Kastenplatanen vor allem die orthogonale
Aufteilung über unterschiedliche Materialien. Die auf dem Platz stehenden
Lampen und die Architektur der dortigen Tiefgaragen-Zugänge beziehen
sich in ihrer Gestaltung ebenso unmittelbar auf den Landtagsneubau.
Zur Elbe hin öffnet sich der Platz über eine Sitztreppe." Mehr
Bilder auf: www.wasistlandschaft.de

"Nike
89, Sieg mit gebrochenen Flügeln" von Wieland Förster, Foto: TK 2010
|
|
Der Altbau
von 1931 für das
Sächsische Finanz- und Zollamt stammt
von Barthold und Tiede, die sonst in Dresden kein weiteres Bauwerk
errichteten. Nach
langen Hochhaus-debatten in Dresden in den 20er Jahren konnte immerhin
ein 8-stöckiger Turm mit 36 Meter Höhe errichtet werden,
der kubisch aus der südöstlichen Ecke herausragt und
mittlerweile Teil der Dresdner Elbsilhouette ist. Alle Dächer sind
keine Flachdächer, sondern wiesen eine 30%-Dachneigung auf.
Vom ursprünglichen Gebäude ist nur noch etwa 50% des Komplexes
erhalten. Der gesamte Elbflügel ist im Krieg zerstört worden.
Eines der
typischen Büro-Verwaltungsgebäude der 1930er Jahre im Stil
der Neuen Sachlichkeit bringt all die oft unter-
schätzen Gestaltungsmittel zum Einsatz, die allgemeinhin wegen
ihrer Dezenz und Zurückgenommenheit übersehen werden. Der
Eindruck luftiger Großzügigkeit des modernen Foyers
konnte beim Umbau 1991 durch die Öffnung sämtlicher umgebender Wände
zugunsten einer loggienartiger Galerie mit offenen Fluren und mehr
Licht noch gesteigert werden.
Der ehemals himmelsoffene Innenhof wurde nun überbaut und hat
heute die Funktion einer Kantine für die Landtagsmitarbeiter
und Abgeordneten.
Ein
weiterer Gestaltungsakzent findet sich in der Fensterreihung mit vorgezogenen
Granit-Gewänden. Gegenüber dem historistisch-eklektizistischen
Elektrizitätswerk mit seinem ornamentierten Turm (nicht mehr
vorhanden) stellte dieses Bürogebäude zur Entstehungszeit
1931 wohl einen starken Kontrast von demonstrativer Sachlichkeit dar.
Die Fassade des Eingangsbereichs mit seinem ehemaligen Sitzungssaal
(jetzt Beratungsraum des Landtagspräsidenten) wurde optisch hervorgehoben durch bauplastischen Schmuck. Zwischen den Fenstern ragten sechs schmal hochstehende, männliche Figuren im strengen Körpergestus empor. Sie waren fast so hoch wie die Fenster des 1. OG und standen jeweils auf einem Konsolstein.
(Die Plastiken bilden die Erwerbszweige ab: Handel, Industrie,
Schiffahrt, Geistesarbeit, Handwerk und Landwirtschaft). Über dem
letzten Geschoss "schmückt(e) den Turm ein schwebender Adler (von
Kunstbildhauer Kretzschmar), den Reichsbau kennzeichnend".
Die beschädigten Skulpturen wurden nach 1945 entfernt.
Literatur:
Sächsische Volkszeitung : 08.07.1931
Fußbodenplatten von
Mies van der Rohe
Jan von Havranek ("Das Neue Dresden 1919 - 1949") fand heraus,
daß "laut einem Vermerk im Schriftarchiv des Landesamtes
für Denkmalpflege Dresden die Fußboden-platten aus dem
Pavillon des Deutschen Reiches von Mies van der Rohe für die
Weltausstellung in Barcelona 1929 stammen." Dieser war nach Beendigung der Ausstellung abgerissen worden, das Baumaterial wurde verschenkt.
1983-86 ist der berühmte Pavillon dann von Spanien rekonstruiert worden.
Die Travertin-Fußbodenplatten in der Größe 40x 80 cm blieben in
Dresden, wo sie nach Landtagspräsident Matthias Rößler (CDU) "ein
echter Bodenschatz sind".

Ehemaliges Finanzamt. Aufnahme: 1975 (SLUB).
Eingangsbereich vereinfacht, Plastiken entfernt, Elbflügel zerstört
Höhendominanten: historisch "verkleideter"
Schornstein des Heizwerkes und niedriger "Turm" des Finanzamtes
1931 - hier noch mit Elbflügel. Der Schornstein wurde 1935
abgebrochen.
Sächsischer Landtag 1946 bis 1952
Das komplett SED-dominierte sächsische
Parlament tagte nach dem Krieg bis zu einer Auflösung 1952 im
Gebäude des ehemaligen Luftgaukommandos
in Dresden Strehlen, was nur zu etwa 1/4 zerstört worden war.
Danach wurde das Land Sachsen in drei "Bezirke" aufgeteilt:
Dresden, Leipzig und Karl-Marx-Stadt (Chemnitz).
Literatur:
Jörn Walter, Städtebau
und Architektur für das moderne Dresden. In: Die Zukunft der Stadt.
Düsseldorf 1995
Der Sächsische Landtag- Umbau, Dresden 1997
Kurt Joa Wimmer, Der Landtagsneubau und sein Umfeld. In: Dresden 1992
Erfahrungen - Perspektiven, Hrsg. Paulhans Peters, arcus 17, Köln
1992.
360°-Panorama am Landtag auf
www.arstempano.de
-------------------------------------------------------------------------------------
Parlamente in Ostdeutschland:
Der wiedervereinte Berliner Landtag sitzt im 1991-92 sanierten Abgeordnetenhaus
im ehemaligen Preußischen Landtag (1892-1904) direkt am Standort
der alten Mauer, die Ost und Westberlin von 1961 bis 1989 trennte.
1991 hat der Landtag von Sachsen-Anhalt seinen Sitz in den historischen
Häusern Domplatz 7 - 9 (1724 bis 1728 gebaut, 1954 bis 1956 nach
Kriegsschäden aufgebaut, direkt am berühmten Magdeburger
Dom.
Der brandenburgische Landtag befindet sich innerhalb des wieder aufgebauten Schloss am Alten Markt. 2011 - 14 wurde dort das neue Parlament durch den gleichen Architekten wie in Dresden gebaut: Peter Kulka. Infos
Mecklenburg-Vorpommerns Parlament tagt edel im Schweriner Schloss.
Der Plenarsaal, bereits 1948 geschaffen, wurde 1990 modern interpretiert.
2017 wird im Schloss ein neuer Plenarsaal gebaut durch Dannheimer &
Joos aus München.
Infos
Thüringen baute in Erfurt 2002-05 einen neuen zeitgenössischen
Plenarsaal. Mehrere "Altbauten" werden für die Verwaltung
genutzt, so das zwischen 1936-39 errichtete jetzige Fraktionsgebäude
oder das 10geschossige Verwaltungshochhaus, gebaut bereits 1950-51.
(Infos)
|
|

Orginale Travertinplatten
des Deutschland-Pavillons der Weltausstellung 1929 in Barcelona

1931 eingebaut in die Eingangshalle des
ehem. Finanzamtes Dresden (jetzt Altbau vom Sächs. Landtag)

Turmartiger Erhöhung des ehem. sächs. Finanzamtes (jetzt
Landtag)

Fotos: T.Kantschew 2007

Hof Kantine 2007

Treppe Altbau 2007

Treppenhaus 1931 im Stil der Neuen Sachlichkeit, Foto: Jan. 2007 TK, Vergrößerung
|